こんばんは
今日は新年を迎えて初の勉強の日です。
昨日作った時間割通りに始めてみました。
・カラー作画
不透明な液体の入ったプラスチックを表現することに注目しました。
写真に合わせて色を調整するのが大変でした。
写真からスポイトでとれば一瞬ですが、それだと勉強にならない気がするので目視してカラーパレット上で調整した色を使っています。
【改善点】
底の円が写真と比べて少々角度が間違っているようです。
グリッド線を表示してデッサンの狂いが無いようによく観察して描きましょう。
写真に合わせて色を調整するのが大変でした。
写真からスポイトでとれば一瞬ですが、それだと勉強にならない気がするので目視してカラーパレット上で調整した色を使っています。
【改善点】
底の円が写真と比べて少々角度が間違っているようです。
グリッド線を表示してデッサンの狂いが無いようによく観察して描きましょう。
ラベルの塗りが雑なせいで内側にへこんでいるように見えます。
光の反射をよく観察して曲面を意識した塗りを心がけましょう。
光の反射をよく観察して曲面を意識した塗りを心がけましょう。
・モノクロ作画(青年誌風)
前回の途中から加筆修正しました。
【加筆修正した点】
一階部分入り口の高さが低すぎたのを調整しました。
瓦屋根をしっかり描きこみました。
【加筆修正した点】
一階部分入り口の高さが低すぎたのを調整しました。
瓦屋根をしっかり描きこみました。
周りの建物や植物を追加しました。
素材感を意識してタッチを追加しています。
【改善点】
一階部分の引き戸上部組子の描き忘れがあります。
瓦にもトーンを貼って光沢を加えるとさらに質感が出るでしょう。
一階部分の引き戸上部組子の描き忘れがあります。
瓦にもトーンを貼って光沢を加えるとさらに質感が出るでしょう。
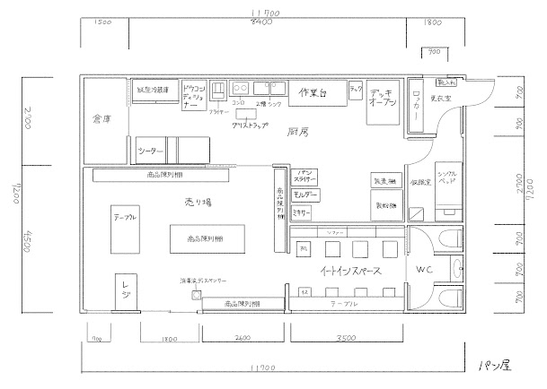
・建築製図(平面図)

初めて飲食店(パン屋)の平面図に挑戦してみました。
かかった時間は1時間40分です。
かかった時間は1時間40分です。
時間が足りず調理器具や家具の寸法までは記入できませんでした。
参考にした書籍は建築知識2022 2月号です。
この本のおかげでパン屋の調理器具を記入できました。
細かい寸法まで書いてあるので飲食店を描きたい時にお勧めの資料です。
・装飾デザイン(古代)
この本のおかげでパン屋の調理器具を記入できました。
細かい寸法まで書いてあるので飲食店を描きたい時にお勧めの資料です。
・装飾デザイン(古代)

「図解ですべてわかる世界の装飾デザイン見本帳」という書籍を参考に描き起こしています。
知識が全くないせいで間違いだらけだと思いますが、雰囲気を伝えることができたらOKという気持ちでやっていきます。
古代エジプトは植物をモチーフにした装飾が多いように感じました。
ロータス(蓮)は古代エジプト人にとってどんな意味があったんでしょう?
調べてみると、ロータスはエジプトの国花であり、蓮ならではの習性(太陽が昇ると開花して夕方になると閉じる。中央が放射線状に開く)から太陽神の象徴でもあるそうです。
なるほど、だから柱の装飾に使っているんですね~。
装飾デザインの研究は歴史についても学ぶことができて面白いですね。
ではそろそろ寝る時間が来たのでこのあたりで失礼します。
今日もお疲れ様でした。
知識が全くないせいで間違いだらけだと思いますが、雰囲気を伝えることができたらOKという気持ちでやっていきます。
古代エジプトは植物をモチーフにした装飾が多いように感じました。
ロータス(蓮)は古代エジプト人にとってどんな意味があったんでしょう?
調べてみると、ロータスはエジプトの国花であり、蓮ならではの習性(太陽が昇ると開花して夕方になると閉じる。中央が放射線状に開く)から太陽神の象徴でもあるそうです。
なるほど、だから柱の装飾に使っているんですね~。
装飾デザインの研究は歴史についても学ぶことができて面白いですね。
ではそろそろ寝る時間が来たのでこのあたりで失礼します。
今日もお疲れ様でした。


コメント
コメントを投稿